Favoriti

ISTRA, NOVIGRAD- Lijepa i kvalitetna kuća nedaleko Novigrada

K117

Šifra objekta

200,00 m2

Kvadratura

4

Broj spavaćih soba

4

Broj kupaonica

Objavljeno: 28.1.2026.

  • Prodajna cijena950 000 €
  • Broj soba5
  • Godina izgradnje2020
  • Vrsta nekretnineKuća
  • Broj spavaćih soba4
  • Udaljenost od mora6 000 m
  • LokacijaNovigrad (52466)
  • Broj kupaonica4
  • Kvadratura200,00 m2
  • Okućnica652,00 m2
  • Energetski razredA
  • Vrsta zgradeKuća
  • Vrsta kućeSamostojeća
  • Br. parkirnih mjesta2

Kuća Samostojeća za prodaju, Novigrad, 950 000 €

Predivna kamena kuća u mjestu udaljenom 6km od mora i centra Novigrada, sa jedinstvenim pogledom na more.

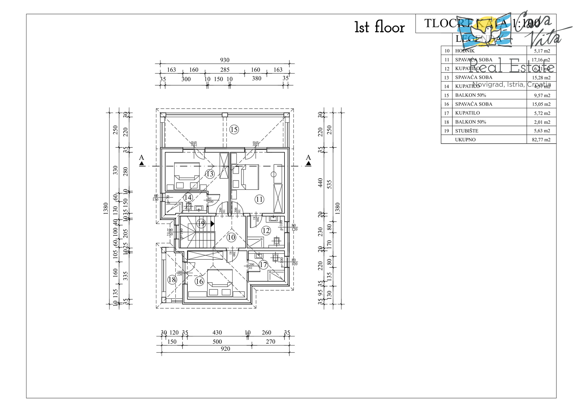
Sastoji se od prizemlja i 1.kata.

Prizemlje: ulazni hodnik, dnevni boravak, kuhinja, 1 spavaća soba, 1 kupaona, toalet, spremište, tehnička soba i natkrivena terasa koja je povezana sa bazenom.

1.kat: 3 spavaće sobe, 3 kupaone, terase.

Smještena je na mirnoj lokaciji gdje možete uživati u potpunoj privatnosti i miru.

Lijepo uređena okućnica, s mnogo zelenila, cvijeća i mediteranskog bilja.

Pred vilom se nalaze 2 parkirna mjesta.

Čitava kuća opremljena je visoko energetski učinkovitim sustavom podnog grijanja s individualnom regulacijom prostorija. Generator energije je toplinska pumpa koja također vrši klimatizaciju svih prostorija putem sustava podnog grijanja. Ovaj sustav ne samo da postiže vrlo ekonomično rukovanje energijom, već i stvara fantastičnu klimu u prostoriji jer se hlađenje odvija na velikim površinama poda. Projektiran prema izračunu potreba za toplinom/hlađenjem i opremljen zasebnim klima uređajima gdje je potrebno. Svi materijali prema njemačkim standardima poznatih proizvođača.

Sustav grijanja: Podno grijanje i hlađenje, zolacijski slojevi prema njemačkom standardu, s pogonom na toplinsku pumpu. Priprema tople vode: Centralni bojler od nehrđajućeg čelika s hidrauličkim razvodnim sustavom i programabilnom cirkulacijom.

U prizemlju su vanjski zidovi izrađeni od visoko toplinski izolacijskih opeka s vrlo dobrim fizičkim svojstvima, parnom branom, izolacijom i masivnim prirodnim kamenom debljine 10 cm, što daje ukupnu debljinu zida od 45 cm. Na gornjem katu 35 cm, s tlačno otpornom fasadom s punom toplinskom zaštitom u skladu s EU direktivama. Značajan dio vanjskih zidova ili fasade izrađen je od punog kamena kao dvoslojni zid. Svi unutarnji zidovi su od punog zida od opeke.

Krovna konstrukcija je izvedena poput stropne konstrukcije. Između nosive konstrukcije i krova nalazi se trostruki sloj toplinske izolacije debljine 15 cm. Krov je izgrađen kao pletena verzija u specifičnom mediteranskom obliku s crvenim glinenim ciglama. Takozvani suhi krov.

Bazen je veličine 35m2.

Obrada vode s UV sterilizatorom od nehrđajućeg čelika i sustavom povratnih filtera od kvarcnog pijeska smanjuje potrošnju klora za 70-80% i postiže značajno mekšu vodu koja je prihvatljiva za kožu.

Razna svojstva

  • Balkon
  • Ostava (izba)
  • Satelitska TV
  • Vrt
  • Protuprovalna vrata
  • Uređena okućnica
  • Roštilj
  • Alu stolarija
  • Pogled na more

Grijanje

  • Struja
  • Klima
  • Kamin
  • Podno grijanje

Instalacije

  • Struja
  • Voda
  • Kanalizacija
  • Telefon

Stanje zgrade

  • Novogradnja

Orijentacija

  • Zapad

U blizini

  • Autoput
  • Golf tereni
  • Marina

Katnost kuće

  • 2

Dokumentacija

  • Uporabna dozvola
  • Građevinska dozvola

Nema tlocrta

Kontaktiraj agenta

Miloš Šverko

Miloš Šverko

Kontaktiraj agenta

Ova stranica ostavlja "kolačiće" na Vašem kompjutoru za potrebe navigacije i anonimizirane statistike pristupa. Korištenjem ove stranice prihvaćate i potvrđujete ove "kolačiće".